
マンションリノベーションで人気の間取り|ライフスタイルの変化に対応!【前編】
近年、新築マンション価格の高騰や供給数の減少により、マンションのリノベーションが注目されています。ライフスタイルに合わせて間取りを自由に変えられる点が大きな魅力で、LDKの拡大や回遊性の高い動線の確保、収納の増設など、多彩な工夫が可能です。
そこで本記事では、人気の理由から具体的な間取りアイデア、リノベ成功の注意点までわかりやすく解説します。
マンションリノベーションが人気の理由

ここではまず、マンションリノベーションが人気の理由について解説します。
新築マンション価格の高騰
近年、新築マンションの価格は年々上昇しており、とくに都心部や主要駅周辺では手の届きにくい水準に達しています。一方で中古マンションを購入してリノベーションする方法なら、購入費用を抑えつつ理想の住まいを実現できるのが魅力です。
建物自体の価値は築年数とともに下がりますが、リノベーションによって内装や設備を一新することで快適性を確保できるため、コストパフォーマンスの高さが注目されています。
好立地物件を確保しやすい
新築マンションは供給数が限られており、駅近や都心といった人気エリアでは希望条件に合う物件を見つけるのが難しくなっています。その点、中古マンション市場なら選択肢が豊富で、憧れの立地で暮らすチャンスが広がります。
通勤・通学や生活の利便性も確保できることから、幅広い世帯に人気です。
好みの間取りに変えられる
マンションリノベーションの魅力の一つとして、ライフスタイルに合わせて間取りを自在に変更できる点が挙げられます。例えば壁を取り払って開放的なLDKにしたり、在宅ワーク用の書斎スペースを設けたりと、家族の暮らしに最適化できるのがメリットです。
中古物件の状態をベースにしながら最新の設備や素材を取り入れられるため、「自分たちだけの住まい」をつくれる自由度の高さが人気を集めています。
マンションリノベーションの間取り事例①動線・家事効率
ここでは、「動線・家事効率」に関するマンションリノベーションの間取り事例のアイデアをご紹介します。
回遊動線を意識する

「回遊動線」とは、行き止まりがなく複数の部屋をスムーズに移動できる動線のことを指します。これによりすれ違う際のストレスを軽減でき、移動を効率化できるのがメリットです。上図では、ウォークインクローゼットを通り抜けてぐるりと回遊できる間取りが採用されています。
また他のアイデアとしては、玄関から収納、キッチンへとつながる間取りも人気です。動線が短くなることで、買い物帰りの片付けが効率的になります。とくに子育て世帯では、回遊動線によってお子さまの様子を確認しやすくなることで安全性も高まります。
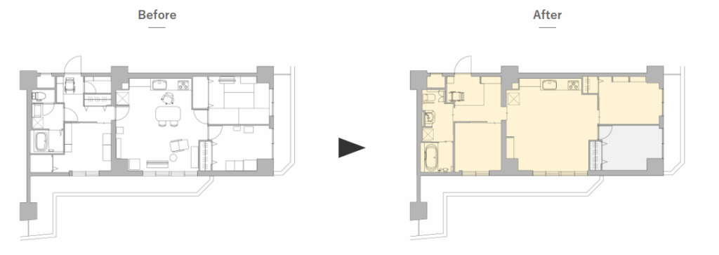
「廊下なし」の開放的な間取り

マンションでは、限られた専有面積を有効活用することが重要です。その点「廊下なし」にして居室やリビングとつなげる間取りであれば、広々とした空間を生み出せます。上図の事例では廊下を縮小することで、リビングの面積を広げているのが特徴です。
これにより生活動線も短くなるため、移動時間が減り生活効率も向上します。さらに採光や風通しも良くなり、室内の明るさや快適性もアップします。プランニング次第で「無駄を省き、ゆとりを増やす」ことにつながるのが魅力です。
寝室をトイレ横に移動させる

寝室をトイレの近くに配置することで、利便性が高くなります。とくに小さなお子さまや高齢の家族がいる場合、移動距離を短縮することで安心感が高まるのもメリットです。

こちらの間取り事例は、車椅子ユーザーであるお施主様に合わせてトイレと洗面室を一体空間として計画しています。動線が短くなることで便利になるだけでなく、安全性も向上できます。
マンションリノベーションの間取り事例②LDK・居室
ここでは、「LDK・居室」に関するマンションリノベーションの間取りアイデア事例をご紹介します。
3LDK→2LDKに変更

3LDKの間取りは、お子さまが独立した後に部屋が余ってしまうケースがあります。そのような場合には、2LDKにリノベーションしてライフスタイルに合わせる方法が人気です。
部屋数を減らしてLDKを拡大すると、開放感のある住まいに生まれ変わります。これによりスペースを広く確保できるため、ペットのいる家庭やホームパーティーにもおすすめです。
対面式キッチンへの変更

リビングを見渡せる対面式キッチンは、料理をしながら家族の会話を楽しめるのが魅力です。小さなお子さまを見守りながら調理できる安心感もポイントで、幅広い世代から人気があります。

ただし壁付けキッチンから対面式キッチンへの変更の場合、配管の位置には注意が必要です。施工可能かどうか、事前に専門業者にご相談することをおすすめします。
「後編」では、マンション間取りリノベーションの注意点についても詳しく解説しています。ぜひご覧ください。



